top of page
Create Your First Project
Start adding your projects to your portfolio. Click on "Manage Projects" to get started
TEPRO OFFICE
Design & Built
Location: Gebze, Turkey
Interior Design: Sinem Oymak & Stereo.works
Photography: Gürkan Akay & Şenay Akay
Year: 2022
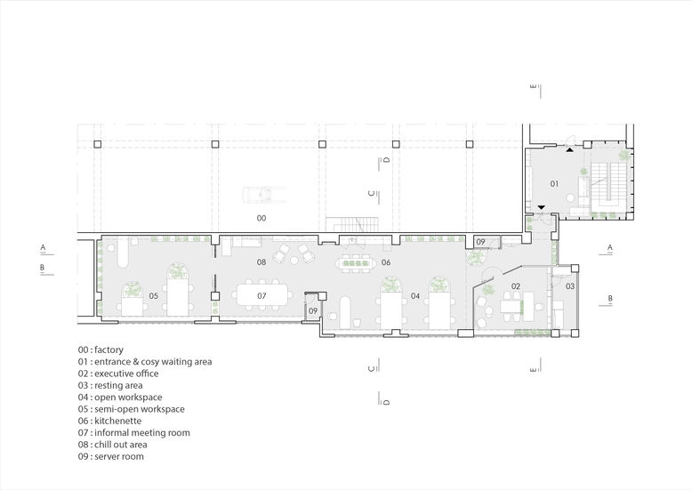
The project comprises the replanning of the offices in the existing factory building located in Organized Industrial Zone.
The offices hosting the management, sales-marketing and software teams has been re-planned according to the needs of the young and dynamic team. The main need conveyed by the employer in the project brief was that the company’s head office, with its disadvantageous location far from the Istanbul city center, should be transformed into an attractive and adaptable work environment for creative young employees.
bottom of page



















